參展聯系:021-3114 8748
參觀聯系:138 1785 1721
媒體聯系:138 1785 1721
QQ:3326911596
郵箱:busexpo@sgexpo.cn

與舊國標相比,新國標除結構調整和編輯性改動外,主要技術變化如下:
增加部分:
1、增加了耐臭氧老化測試;
2、增加了耐鹽霧腐蝕性測試;
3、增加了耐溫度循環性測試;
4、增加了兼容性測試;
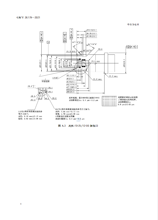
5、增加了70MPa加氫口尺寸;
6、增加了加氫口防凍設計的資料性附錄。
修改部分:
1、修改了35MPa加氫口的加工要求;
2、刪除了消除靜電設計;
3、刪除了材料的氫脆要求;
4、刪除了檢驗規則章節;
5、刪除了25MPa加氫口的尺寸設計。













來源:全國汽車標準化技術委員會
編輯:城市交通網整理

掃碼關注HFCE氫燃料展官方微信